1/100勾配となる最大210mmの傾斜したRC3階建テナントビルを、空きテナントを活用して安全に復元した事例
建築物概要
| 所在地 | 栃木県 |
|---|---|
| 建物名 | テナントビル |
| 構造・規模 | RC造3階建 |
| 基礎構造 | 直接基礎(2重スラブベタ基礎) |
| 復元総重量 | 約 – t |
| 復元平面積 | 125 m² |
| 最大沈下量 | 210 mm |
| 支持地盤土質 | 圧密地盤 |
| 注入孔数 | 17ポイント |
| 工期 | 10日間 |
実施概要
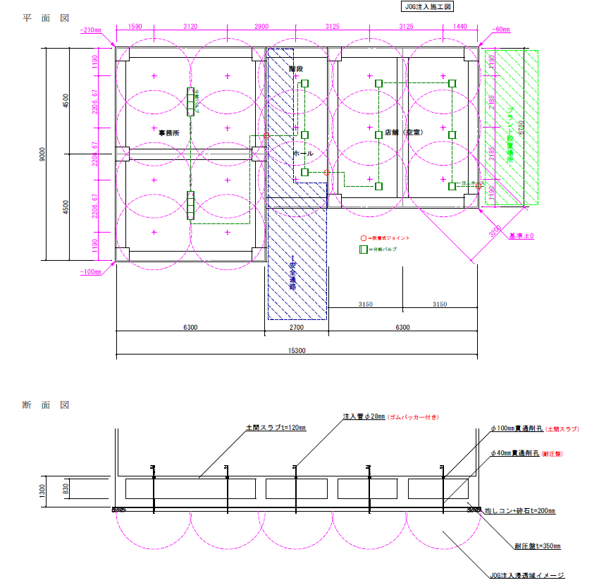
栃木県宇都宮市にある築26年のRC3階建テナントビル(125㎡)では、建物南側から北側へ向かって 1/100勾配となる最大210mmの傾斜 が確認された。
基礎は厚さ350mmの二重スラブによるベタ基礎で構築されており、杭などの深い支持層は設けられていなかったため、経年的な地盤支持力の低下によって建物全体が緩やかに傾斜したものと考えられた。
傾斜は建物全体に及んでおり、テナント内では床の不陸や建具の不具合が発生し、使用上の支障が生じていた。
幸い、1階テナントが空室であったため、施工スペースが確保でき、JOG工法の施工性が非常に良い環境 であった。
これらの状況を踏まえ、建物全体を均一に押し上げることができるJOG工法が最適と判断された。
実施施工
まず、建物全周および内部のレベル測定を実施し、南北方向に形成されていた1/100勾配(最大210mm)を精密に把握した。
次に、外周と空きテナント内部から基礎直下へ注入孔を配置し、沈下量に応じてJOG工法の多点微量注入による復元計画を立てた。

施工では、基礎下の空隙を充填しながら地盤支持力を高め、建物全体をミリ単位で均等に押し上げた。
また、レーザーレベルにて建物の動きを常時監視し、復元量が偏らないよう細かい調整を繰り返した。
その結果、1/100勾配の傾斜は計画どおり改善され、建物は安定した水平状態を回復 した。
さらに、空きテナントを施工エリアとして活用できたことで、他の入居テナントの営業に影響を与えることなく安全に工事を完了することができた。
栃木県でテナントビル・商業施設・オフィスビルの沈下や床不陸でお困りの方は、平成テクノスのJOG工法にお任せください。
また、隣接する 群馬県・茨城県・福島県・埼玉県 でも、造成地や地盤の弱い市街地で同様のビル沈下が多く発生しています。
JOG工法は、
・建物を稼働したまま沈下修正が可能
・テナント営業を止めずに施工できる
・RC造・S造・ベタ基礎に高い適合性
・ミリ単位での精密なレベル調整
といった特長から、商業ビル・複合施設・マンションなど多くの物件で採用されています。
「床が傾いている」「ドアが閉まらない」「設備に不具合が出てきた」
そんな場合は早めのご相談が最適です。